Prior to focusing mainly on modern design solutions, MODE4 completed many traditional design projects. The following archived portfolio represents some of these projects.
An exciting project in Arlington, where our goal is to create a harmonious blend of comfort, functionality, and modern aesthetics. The design centers around a garage that serves dual purposes: a support space for the main house and an accessory dwelling unit (ADU). Inspired by the tiny house movement, we’re meticulously planning the ADU and support spaces to ensure they are well-equipped and functional. We’re also addressing unique challenges such as zoning restrictions and environmental considerations. One of our key considerations is whether to completely rebuild the existing garage to better serve its purpose.
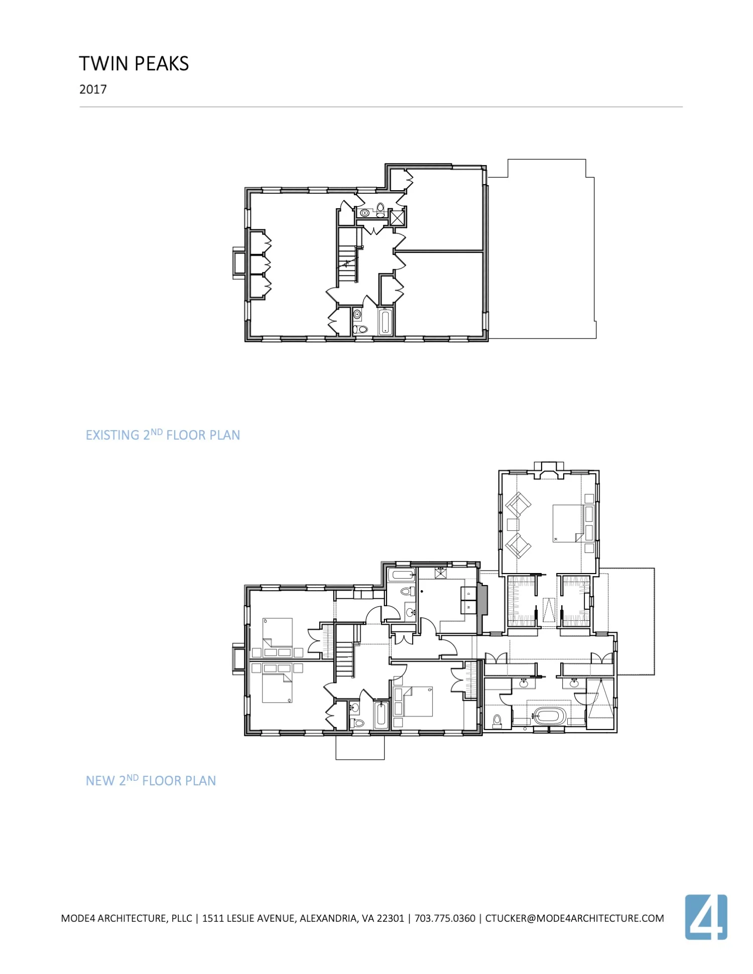
The project is divided into two main phases: demolition and renovation/addition.
During the demolition phase, we’re making significant changes to the existing structure. This includes demolishing the masonry chimney, attic, roof structure, rear door, rear window, and the small porch at the rear. We’re also undertaking selective interior demolition on the first floor, removing the rear stair, kitchen cabinets, and the basement rear stair. Additionally, we’re demolishing the rear foundation wall at the stair and a basement window at the office.
Following the demolition, we’re moving into the renovation and addition phase. In the basement, we’re creating a new conditioned crawl space under the kitchen, constructing a new foundation wall at the stair tower, and relocating the mechanical room. On the first floor, we’re designing a new mudroom, kitchen, and stair hall, along with a new covered stoop.
The second floor will see the addition of a new master suite and bedrooms, along with a new stair system. To top it all off, we’re installing a new roof to ensure a sturdy and secure home.
This project is a testament to our commitment to transforming spaces while preserving the essence of the original structure.
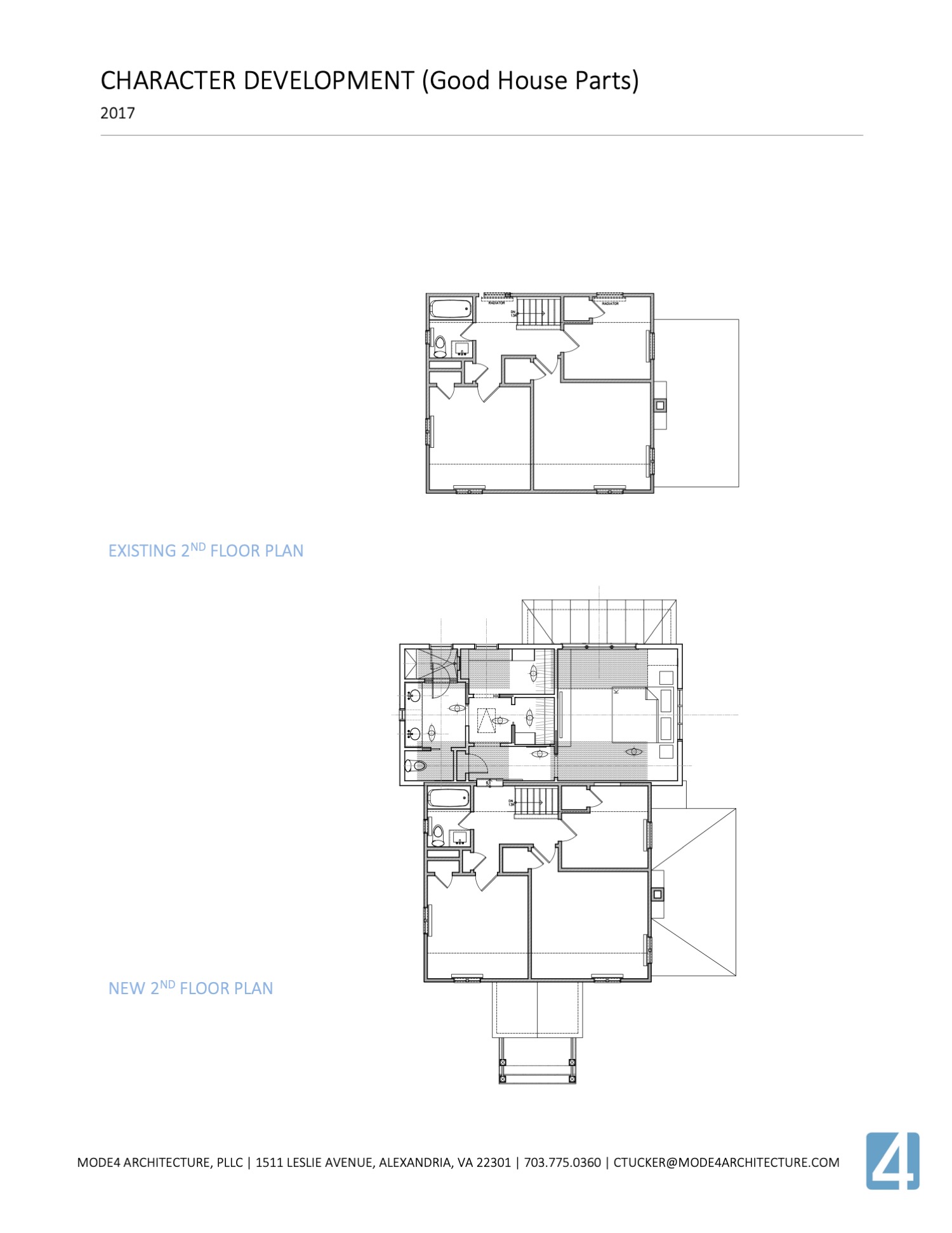
This project is a conceptual blueprint for a comprehensive home transformation. It involves several stages, starting with the demolition of interior walls to create an open layout. The basement will be upgraded with a new conditioned crawl space under the Family Room. The first floor will see a transformation with the conversion of part of the garage into a Mudroom and Kitchen, the installation of a new wood sleeper system over the garage slab, the addition of a new Family Room, Pantry, Closet, and Covered Porches. A completely new second floor will be added, featuring a master suite, additional bedrooms, a luxurious Master Bath, and a dedicated Office. The project concludes with the installation of a new roof over the second floor addition. This conceptual design enhances the home’s functionality, comfort, and aesthetic appeal while maintaining a high-quality standard of work. It serves as a schematic guide for the envisioned transformation.
This project is a full renovation of an original Sears Bungalow (The Hamilton) located in the Del Ray neighborhood of Alexandria, VA. The owners were requiring more space for their growing family, calling for a new second floor addition and a rear two-story addition. They were seeking a modern interpretation of a classic Craftsman Style home, with more daylight, larger openings, better spatial connectivity, greater storage, and more elbow-room than typically found in older bungalows.
The massing of the house is separated into two main program pieces, connected by a mudroom and breezeway “gasket.” The original stair was relocated in plan; it was shifted to align with the new circulation spine of the second floor and to open up the first floor plan. The left side of house is dedicated to social & gathering spaces on the first floor, and children's bedrooms on the second floor. The right side of the house holds “service” program on the first floor and the master suite on the second. The two-story rear addition houses the family room on the first level, with large openings to the new rear/side deck, and the master bedroom “birdhouse” at the second floor.
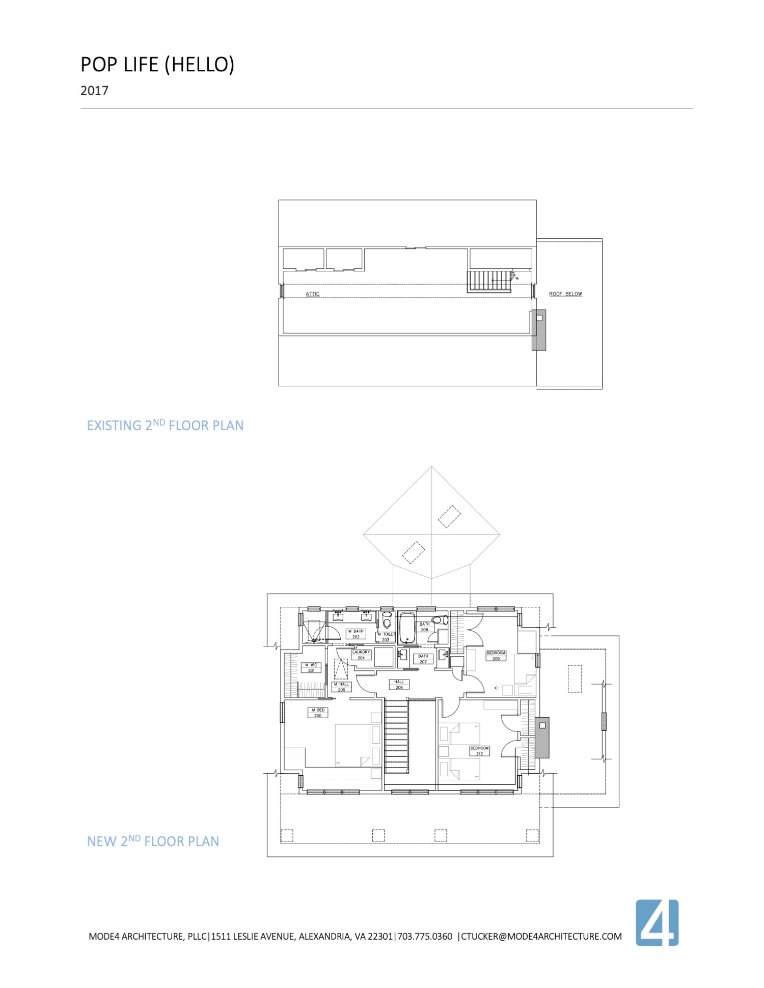
The owners of a single-story brick ranch-style house in Alexandria, VA were interested in creating additional private spaces for their growing family by “popping the top” of their home to build a second floor living space where there was once only attic. In addition, the couple had a specific fondness for the Craftsman Style and an interest in converting their existing house into a Craftsman inspired home. Locally, the neighborhoods of Del Ray and Rosemont are awash with premiere examples of original Sears Catalog homes from the early 20th century. Such a style change would be a welcomed fit.
The new design is similar to Sears Catalogue models such as The Westlyand The Sunbeam, and takes some inspiration from homes in the Rosemont and Del Ray neighborhoods, with a steeper pitched roof than what is typical for the Sears Craftsman style.
The first floor remains mostly “untouched,” with a new stair and front foyer added to the floor plan to access the new second floor. The existing basement stair, kitchen, dining room, bathroom, and rear guest room remain as-is. A new roof and vaulted ceiling is added to the existing sunroom. The new second floor addition includes a full master suite, laundry closet, open balcony to foyer below, two children bedrooms, and a hall bathroom. A new screened porch pavilion is added to the rear.
To meet the requirements for this kitchen, we captured existing underutilized and poorly designed spaces. This newly renovated kitchen spans the entire width of the north end of this 1920s Sears Bungalow, with a 10 foot island table anchoring the space, and directing traffic flow away from the main work areas.
Christopher Tucker, Design Principal
Kitchen Cabinets by MidSouth Building Supply, Inc.
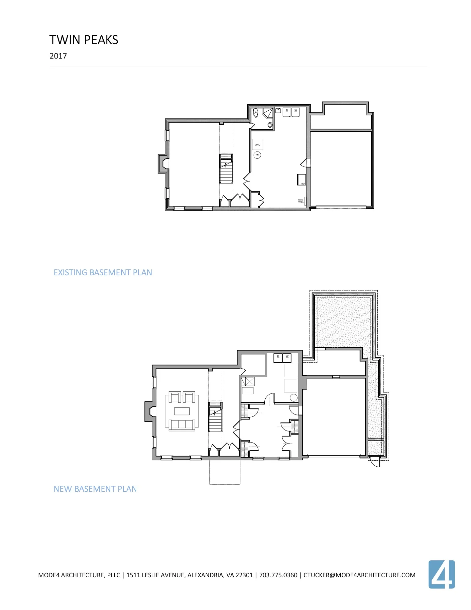
Located in the Spring Vlleyneighborhood of NW D.C., this is a sizable project with a scope including a full renovation of the existing house and a new two-story addition to the right side. The addition holds a second floor master suite, and a first floor family room, breakfast room, and kitchen. The existing second floor was redesigned to accommodate an addition bedroom with on-suite bathroom.
An existing non-descript, two-story brick and wood-siding colonial located in the Beverly Hills neighborhood of Alexandria, VA was in need of a face-lift to help define its character, and an addition to expand usable living spaces. The program includes a new front foyer, pantry, and powder room at the existing first floor, and a new kitchen and family room at the first floor addition. The second floor of the existing house remains largely untouched, while the second floor of the addition is entirely a master suite.
This is a large renovation project for a growing family with four children. The project includes additions to the rear and right side of the house. The additions hold a master suite, family room, dining room, butler's pantry, breakfast nook, new children's bedrooms, Jack-n-Jill bath, mud- room, and more. The existing house is barely recognizable in the elevation drawings, as we have added new siding over the brick at the second floor level.
This project is located in the Mount Vernon area of Fairfax County, VA. It was completed for a local builder/developer in an effort to compete in the custom home design market. The existing single-story brick ranch-style house was enlarged with renewed sophistication. We specifically focused on a classic design within an open-plan concept, while maintaining "clean" traditional details and finishes.
Christopher Tucker, Design Principal
This project is located in Arlington, VA. It was completed for a local builder/developer in an effort to compete in the custom home design market. We specifically focused the design and details as a modified Craftsman style urban farmhouse. The interior spaces, however, hint at clean modern details and finishes.
Christopher Tucker, Design Principal
Nestled into the tight historic Rosemont neighborhood, just outside of Old Town Alexandria, Virginia, Lightbox features a slim profiled modern shell with strategically placed apertures to create a bright illuminated interior in an otherwise shaded and dark parcel of urban land. Still in the design phase, the main massing will center itself on a sun soaked double height living space sliced above by a mezzanine and skylights to create dancing shadows through the day. Adjacent a stair tower which through the use of double height vertical louvers will offer privacy from the open light inducing front elevation without sacrificing natural illumination. Front and rear patios will flank the main massing as will a wing which stackd the master suite over a luxurious covered porch, both consuming flora filled views.